designed by : Johnathan Keith King, renovation by Burgers Architecture
built by : ? in 1972, renovated by CB Developments in 2014 [2021-listed for 5.49mil]
article featured in western living magazine can be read here.
check out the listing on the realtor’s website and a short blurb on the house :
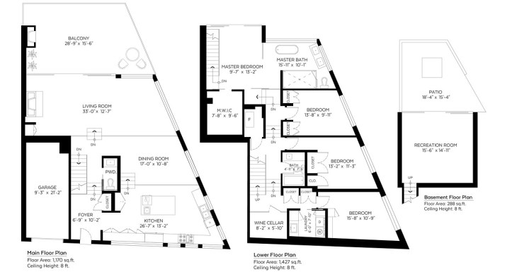
this one-of-a-kind architectural gem was originally built in 1972 and then extensively renovated in 2014 using modern construction techniques and materials such as exposed poured concrete walls, polished concrete floors, frameless triple paned windows, and horizontal cedar siding; all with a goal of staying true to the original design. the main floor is open and split into three levels cascading from the kitchen to the dining room to the living room ending on an expansive terrace – all offering views to the burrard inlet. the lower level, has three bedrooms and a den including a fabulous master suite with floor to ceiling windows overlooking a terrace and reflective pond and offering views to the north shore mountains. one final flight down is where the home office and gym can be found with sliding glass doors opening to the garden level patio with a gas fire pit. in floor glass panels, an outdoor fireplace, a custom glass 200+ bottle wine room, and a single attached garage complete this amazing home.












