A newly completed home by DRKdesign.
The atrium house :
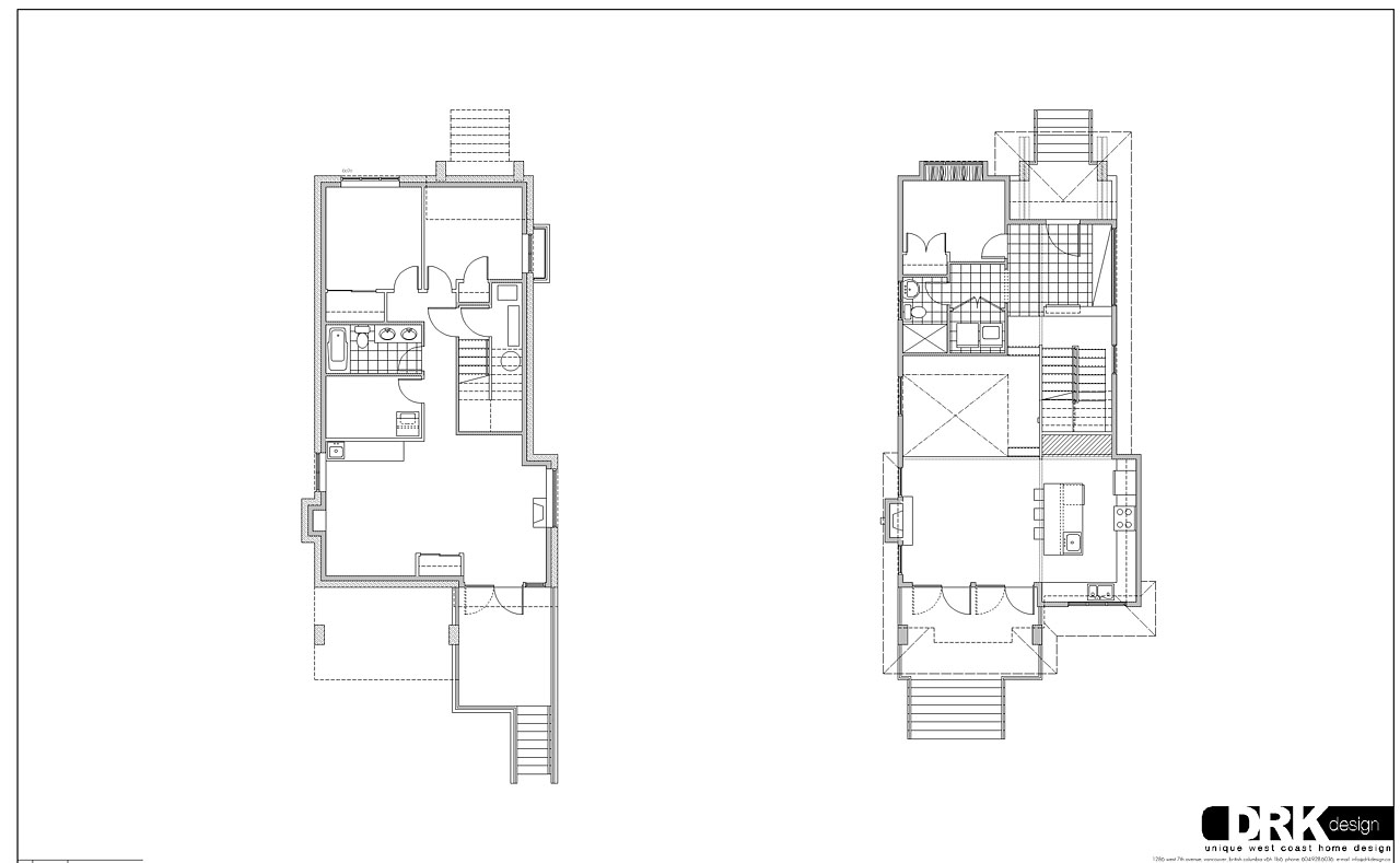
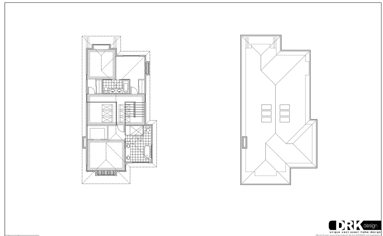
Located on a busy street in Kerrisdale neighborhood in Vancouver West, a standard 33x 122 lot, with single family homes in all adjacency. The prime goal of the new house was to explore open living concepts and flow within the house. The central double height living space is a key feature in the house. Vaulted ceiling and skylights bring in natural light throughout the year. Glazing was maximized along the south elevation for solar gains during the winter season. The roof overhangs were calculated to reduce solar gains during the summer months.
Sustainable features:
Ample windows and skylights reduce need for artificial lighting.
Concrete floors improve thermal mass, to reduce need for heating.
Large southern exposure glazing for winter solar gains.
High efficient heat-recovery-ventilator for fresh air circulation.
Now on the market and a scheduled open house this Saturday & Sunday April 20th & 21st 2013 between 2pm and 4pm. A link to the leaflet by the builders here and a video of the interior here.photos by DRKdesign.





































