dan white modern victoria : 530 salmon road

530 salmon - deckdesigned by : daniel evan white

built in : 1974

check out the listing at sothebys, and further images by realtors here. Below is a lengthy writeup on the house:

progressive for its day in 1974, when daniel white, renowned bc architect, conceived this 5500 square foot west coast contemporary residence on the western facing shores of the saanich Inlet. now, fully restored, and progressive once again, with the latest in technology; seamlessly united with its gentle sloping, forested site, complementing white’s dynamic, bold, yet environmentally empathetic design through a refined selection of natural materials, from both near and afar, executed to an unparalleled standard. this private, 2 acre, coastal sanctuary, hugs 400 feet of temperate rainforest waterfront, affording arresting ocean views through its fully glassed western exposure. the intricately stepped plan further captures magical vistas of the surrounding towering trees and moon lit nights through an interlocking series of arched skylights. Interior open planning furthers this intriguing visual experience, reinstating the site’s natural topography as well as its tactile richness through a matrix of locally milled cedar, and custom quarried rajasthani slate floors – both inside and out. the understated natural palette defers to the daylight views beyond, while at night, this selection, further enhanced with australian brush box flooring, black honed granite counters and cabinetry panels of resin embedded reeds, come into their own through a carefully designed system of programmable lighting. both broad expanses and precise vignettes of glass are secured through a system of top grade commercial windows and doors. state of the art seismic engineering secures the structure to its foundation. several exterior decks continue the stepped progression providing an entertaining bbq area; a pool with adjoining changing room and steam/shower; separate guest or caretaker quarters; as well as coastline decks that offer a variety of transitional daylight and shade opportunities to enjoy both white’s remarkable creation and one of victoria’s finest coastlines.

530 salmon - entry stairsthe entry sequence is a true dan white experience. approach the house at upper level and exterior stairs lead down to lower living levels.

530 salmon - upper floor planthe upper floor plan. note that the large set of stairs leads from roadway to upper floor and then down to pool level. rooms are open to each other and separate by changes in level with few steps within the plan.

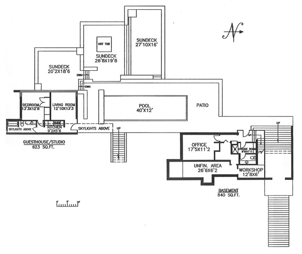
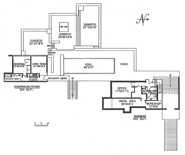
530 salmon - lower floor planthe lower level plan features the pool and a small separate suite and loads of deck space.

530 salmon - living roomthe living room features the curved window/skylights to allow natural light and extend the window visually beyond the ceiling.

530 salmon - bedroomthe bedroom has a smart built-in that does not reach the ceiling. this creates a feeling of a room larger than it really is since the ceiling plane continues throughout.

Leave a comment