house is also known as the ‘matthison I residence’ (see play house exhibition catalogue from museum of vancouver)
designed by : daniel evan white
built in : 1974
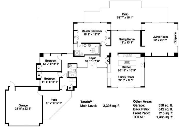
a wonderful custom home designed by dan white, implementing geometric patterns in floor plan.

short blurb about the house from the realtor:
beachfront magic! 70’ of panoramic waterfront on centennial beach in sunny tsawwassen. views of mount baker and mount rainier. beautiful fenced private gardens lead to beachfront bungalow designed by renowned west coast modernist dan white. amazing kitchen renovation designed by the home’s original architect. the best beach lot (12,852 feet) on centennial beach. the area boasts sunshine, warm and shallow water, walking trails, tall grasses and seemingly endless beach.

take a look at the image tour here.
[…] neighbour to yesterday’s blog post […]
too bad they painted over the cedar!
as of 2015 this house has been bulldozed to make way for a new residence.
that’s a real shame.