
designed by : lanefab
built by : stone creek construction in 2015 [listed for 1.85mil]
check out more about this house and passive house in the news.
here is a short description of the house from it’s own feature website :
Own one of Vancouver’s most efficient and comfortable homes. Built using German ‘Passivhaus’ energy efficiency techniques, this home features super-insulated walls and triple glazed windows – creating a new level of comfort year round. Save money every month on utilities, while gaining comfort and contributing to a healthier environment and climate.
Become the owner of this special home, and become a leader in your community. This is the first detached Passive Solar House built in British Columbia to be available on the market to purchase.
Though built to Passive House principles*, this home does offer a radiant heating system. This leading construction design is seen all over the world – including many cold, wet, harsh climates. These homes do not require a primary heating source at all, nor do we expect you to need/use one here. However, given it is the first of its kind locally on the market, you will have the choice to turn the heat on, for peace of mind – though we’re confident daring you not to.
Enjoy Passive House comfort in style. Besides top-quality energy efficiency, this home is sleek, modern, open, and perfect for entertaining. The main floor has a large, luxury kitchen looking out to a family room, impressive dining area, and connected formal living space. With glass stairway accents, top-tier appliances, and beautifully unique wide window spaces on both the North and South side of the home, you can not only take pride in your low carbon footprint, but in your fabulous space too.
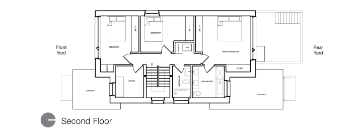
Dramatic vaulted ceilings upstairs bring a serious cool factor to the 3 large bedrooms + den/office. The master suite offers an exceptional view of the North Shore mountains, modern built-in storage solutions, and a pretty, spa-inspired ensuite.
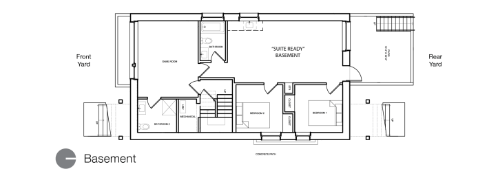
This home offers a versatile basement with a large flex room, complete with full bathroom. Easily enjoyed by either the primary residence or basement tenants, it makes an ideal media room or even a second master suite. The kitchen below is roughed in, and can be installed at the buyer’s discretion.
the living space next to the entry.
the view from the living room.
kitchen features symmetrical cabinet design.
family room at back of house.
bedroom at front of house.
master bedroom at back of house has mountain views.
the laneway house:
the laneway house features a sunken entry at internal yard side.


open living space on upper floor of laneway house.


