ok ok i know what you are thinking, this is ‘vancouver’ modern residential blog and here i am writing about a house in furry creek, but i just couldn’t resist. take a look and tell me that this place is not awesome.

lets call this house ‘view hugger’
designed by : fook weng chan
built in : 1997 [2012 – listed for 1.98mil]
here is the blurb from the realtor :
villa kulangsu is the most unique landmark home at furry creek. built w/the finest materials, including limestone floors, edge-grain fir window frames, baseboards & casing, this home captures the full howe sound experience from ocean to snow-capped mountains & glaciers. designed by renowned architect fook weng chan in a half-moon shape, the home has been featured in the tv series “amazing vacation homes” & western living magazine. sky-lit foyer with slate floor, 2-sided fireplace, huge open plan living room & wall of windows where you are awestruck by the fabulous views & built-in custom cabinetry. on the lower level discover the custom spa built into the rock. the architecture is dramatic, private, serene & respects nature with amazing feng shui.

approach to the house from the driveway reaveals its more angular side.

the curvy side of the half-moon shape of the house faces the views and the water.

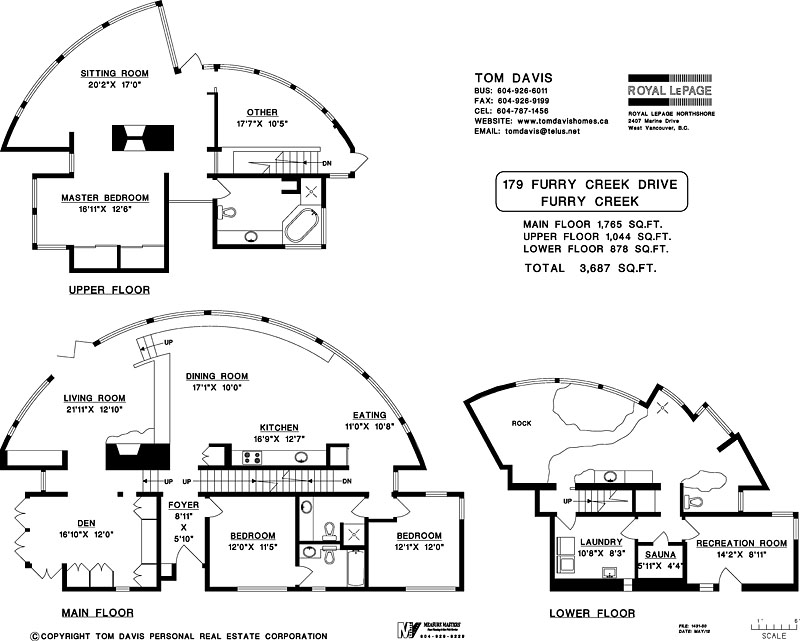
the floorplans. entry is on the middle floor with living/dining/cooking area, a huge deck and 2 bedrooms with ensuites.

the living room with deck beyond. a few step down lead to the dining room and the kitchen.

view of the living room looking towards the fireplace. built-in shelving closes off the room on the right. passage around the fireplace leads to den and foyer.

the dining space with kicthen cabinet on the left. more built-ins separate the space from the living room beyond. the view surrounds the space through the arc of windows.

the deck outside the living space. glass railings keep from obscuring the panorama.

up a flight of stairs is the sitting room with another stone fireplace and built in rounded ‘couch’ and again that view dominates the space.

the master bathroom has stone tile throughout. generous corner window at bathtub with a view and if that was not enough look up and stare at the stars! yowza.

stairs even have a view. do you see a theme here?

den and vanity sink with glazing as backspash.

climb down a set of stais and enter a grotto with natural stone pool. yup. the view is ever present in this house.