goodie : 4451 walden street

4451 walden - frontdesigned and built by : kore residential with construction drawings produced by yours truly.

link to the listing. here is a blurb from the realtors, mazaheri soo team :

it’s truly the details that differentiate this stunning new home. the curb appeal is accentuated by the custom entrance door, exterior pot lights & sconces, cantilevered decks & awnings, all of which accent the architecture. the interior is flawless and each finish was chosen to inspire. this sophisticated 3-level, 3-bed home is wired for all your technology needs, including a sonos sound system for distributed audio. modern white oak engineered wood floors on the main level set the stage for the designer inspired kitchen including fisher/paykel appliances, & modular creations cabinetry. the master retreat above has soaring vaulted ceilings, and this home features radiant heat with air-conditioning! this modern home has a very inviting feel.

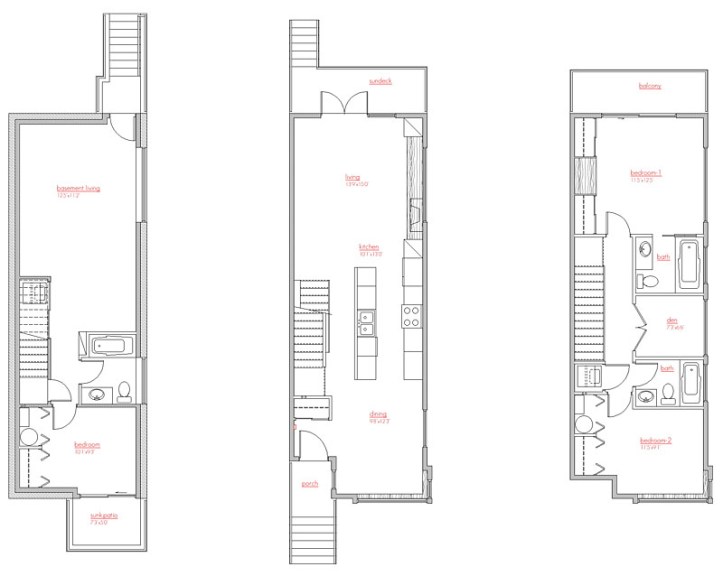
4451 walden - floor planthe basement, main and upper floor plans are laid out for maximum efficiency for a narrow site.

4451 walden - kitchenthe kitchen is located in the centre of the house for access to dining room at east side of house (by the entry) and the main family living space.

4451 walden - living roomthe living room features a linear fireplace and tv alcove. large doors open onto deck with access to the western yard.

4451 walden - bedroomthe bedroom has a high ceiling to give a visual/spacial comfort in an otherwise small footprint.

4451 walden - basementthe basement living room has a large linear window for natural light.

4451 walden- backyardthe backyard has been enclosed with horizontally-applied fencing, and ensures adequate privacy even with adjacent homes within a few feet.

Leave a comment