designed by : DRKdesign
built by : owner in 2020 [2025 – listed for 3.998mil]

a short blurb by the realtor:
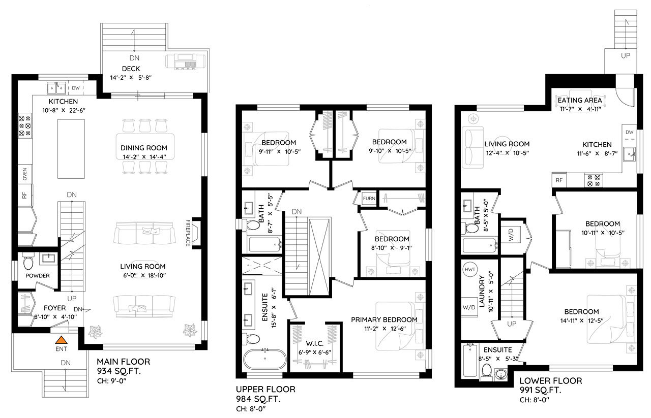
rare and beautiful, modern main street dream home. newer build, only 5 years young and no gst! every detail of this home will exceeded your expectations, from the over height ceilings to the open sleek main floor with huge front windows, luxurious kitchen and a cute tucked away powder. a gorgeous architectural staircase takes you upstairs to the surprise 4 bedrooms, 2 bath family friendly top floor with a skylight. a versatile basement that offers flex space for the main home and a legal 1 bedroom suite for potential rental income or a multi-generational family. this home has top of the line finishings, a/c, and a perfect floor plan for family living. balance of warranty, 2 car garage and back yard space for entertaining too! be sure to come and see it before it’s gone.

an efficient floorplan designed to feel a lot bigger than it really is.





