
a recently completed new home in dunbar by drkdesign. the house is located on a beautiful open west-facing lot overlooking chaldecott park.
the wallace house :
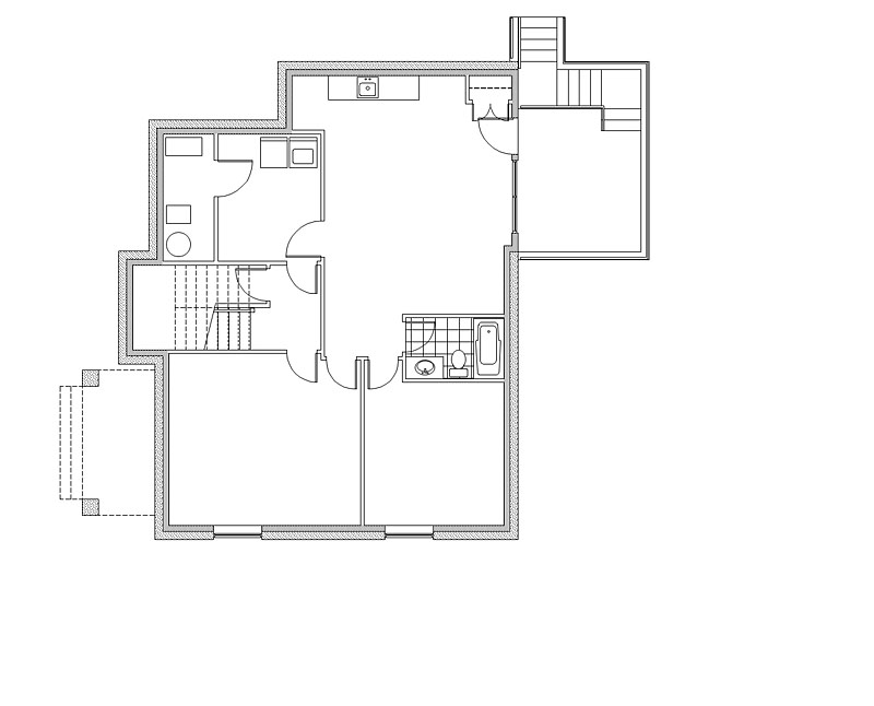
the house was designed for a young family with 2 children. the main floor features an open living-dining-kitchen space. a family room is located off this space and faces the street. the main entry and foyer is a few steps down from the living area, to provide separation between spaces while keeping visual connection. a staircase located on the west side of the house provides access to the basement and the upper floor with the bedrooms. the stairs were located on the west side of the house to ensure maximum space for bedrooms along the east side of the house overlooking the backyard, and views. the upper floor contains 4 bedrooms and 2 bathrooms, as well as, the washer and dryer. the master bedroom has a balconette overlooking the yard, a great place to sit while enjoying the morning’s 1st cup. The basement has a potential for an in-law suite, with 2 bedrooms and a private bathroom.
the ground, upper and basement floor plans and elevation drawings.

the dining room looking from the kitchen towards the living space. ample amount of glazing is provided along the private side of the house.

the living room features a gas fireplace and box windows which can be turned into bookcases. built-in credenza along the wall offers additional storage.

the dining room with window seat overlooking the yard.

the kitchen. the door to the left is to the family room. large window at the sink allows natural light into the kitchen. door to the back next to the fridge is a mudroom, that can be used as a wok kitchen or a coffee station.

the family room has a corner window with views to the street and park beyond.

the backyard looking south. a large wooden deck directly off the dining/living room connects the outside in.
the house is on the market right now and here is a link to the video tour and the realtor’s listing.
all photos by westside realty, except top photo and drawings by drkdesign.



