douglas park twins
designed by : DRKdesign
built by : marman developments in 2015 [listed for 2.19mil]
photography by : silvija crnjak
taking an existing site of 49.5′ and subdividing into two lots of 24.75′ wide and then building a new home on each lot with RS-7 zoning was the challenge here.
both houses utilize thick walls with exterior rigid insulation for greater thermal performance, as well as, durability.


there were a few challenges beyond the zoning requirements.
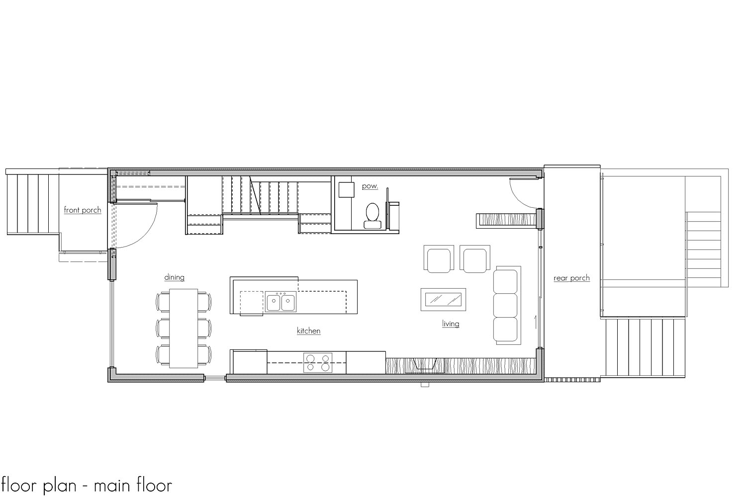
due to the narrow floorplate, making bedroom spacious enough was a key concern, which was solved by offsetting the two front bedrooms with a balcony filling in the space and allowing a large corner window in the bedroom while ensuring neighbor’s privacy.

in order to bring natural light into the center of the building, a large rectangular skylight was used in combination with an open stairs extending down two floors.

the basement included a secondary suite with a living space and kitchen and one bedroom and bath, with a sunken patio off the back of the house. In order for a functional layout below grade, the sunken patio was made as wide as possible and full height glazing extend the space visually beyond.

the main floor consisting of entry, living/kitchen/dining space and powder room was kept as open as possible yet, spaces feel separated due to location of kitchen in center of the space but visually open through to back of house and to the yard beyond.

exterior features a flat roofline with expansive windows to bring in light.
here is the blurb on the house from the realtor:
unique “cube house” with the perfect family feel in sought-after cambie! this modern home has clean lines, upscale finishings and millwork throughout with a thoughtful floor plan. the “lawn free” landscaping creates a low maintenance, but gorgeous front and back yard. main floor is open and bright with high ceilings and a stunning chef’s kitchen. use of millwork is extensive and topped off with a feature floating fireplace in the living room. a stunning staircase leads you to the upper level where you’ll find 3 bedrooms with high ceilings again and two full well appointed baths. lower level is perfect with a flexible rec room/media room or play room. downstairs a 1 bedroom legal suite adds wonderful revenue potential. a double garage and walkability to cambie’s best parks complete the package.
general features:
– roxul cavityrock md 1.5″ exterior insulation provides superior long-term thermal & acoustic performance
– venmar avs heat recovery ventilator system with advanced blower design for quiet operation
– radiant in-floor heating
– ‘nest’ smart thermostat
– viessman on demand heat
– monitored security alarm system with dsc touchscreen pad with 7″ full color display, slim modern design (800×480 resolution), intuitive led indication of security system status, picture frame feature, intuitive user interface
– aiphone hands-free color video intercom
– 4x high definition night vision cameras with digital video recorder
– built-in sound system
– professionally designed lawn-free landscaping
– millwork and cabinetry by q pointmain floor features:
– custom millwork with whitewashed maple and cherry wood wall paneling, and matching pocket door for main floor powder room
– imported italian tribeca porcelain tiles throughout the entire main floor
– custom side-mount steel and glass stair railings
– solid white oak stairs and runners with built in stair lighting
– oversized milgard windows and sliding doors with roller blinds
– 50” electric linear fireplace
– outfitted with hdmi cords above fireplacekitchen features:
– fisherpaykel activesmart refrigerator
– fisherpaykel double drawer smart wash dishwasher
– fisherpaykel 30″ gas range convection oven
– panasonic built-in microwave
– miele stainless steel hood fan
– gorgeous granite counters
– double undermount stainless steel sink with grohe pulldown faucet
– oversized long working centre island
– excellent storage and work surface spaceupper floor features:
– oversized elongated skylight above stairs for loads of light
– 3 excellent bedrooms with generous closets
– lovely master suite with double closet with frosted glass doors
– oversized private balcony off the master with privacy frosted glass
– engineered flooring throughout
– whirlpool steam stacker washer/dryer in extra deep closetmaster ensuite features:
– double kohler undermount sinks
– granite counters
– kohler toilet
– walk in oversized shower
– grohe rainhead shower and faucet
– oversized window provides loads of lightbathroom features:
– high quality bathroom fixtures including duravit bathtub and grohe faucets.
– use of hohler sinks, toilets
– granite counterslower floor features:
– excellent space for media room, play room, rec room with over height ceilings and closet
– self contained legal basement suite. suite kitchen features stainless steel appliance package and cabinets matching with main floor kitchen.











