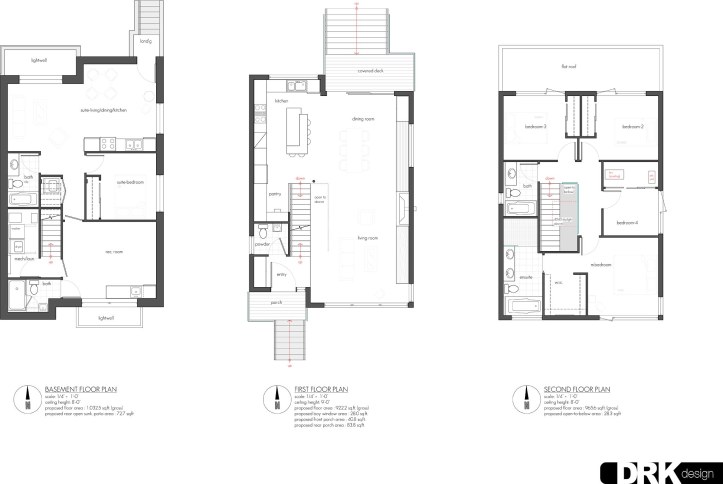
designed by : DRKdesign
built in 2020
interior design by : emily danylchuk
some more renders of the project :
designed by : DRKdesign
built in 2020
interior design by : emily danylchuk
some more renders of the project :