soon to be a goodie – i came across this project for sale. the current lot has an old house on it and the realtor is stating that a building permit for a new modern house has been completed and to be carried out by new owner.
taking a look at the design of the new home surprised me. the unnamed designer has done a good job of designing a contemporary house. now, the only trick is to find that willing party to build it.
here is the link to the realtor’s listing.

above is a rendering of the proposed house from the street. to keep the front fenestration of the house from being over-sized and completely exposed, the use of a grounding and solid feature, being the stone chimney, is used. This element also breaks up the elevation quite nicely. A nice use of corner doors and windows allows those views to come into the house. this being the north side of the house, the roof overhangs are kept to a minimum to allow as much soft indirect light into the space. the covered entry has the benefit of being next to he chimney element hence allowing the stone feature naturally be part of the porch and entry beyond (i hope – we shall see once we take a look at the floor plans further.) having flat roofs naturally leads to having roof top decks. it looks like that is the way to go as this site has quite a stunning view.

a rendering of the back of the house and the southern elevation. nice use of glazing on the ground floor facing the backyard. this will be good for all those cloudy days we get in the fall and winter. the upper floor overhang should be a bit longer. as you can even see by this rendering, if this is mid summer (july-sept), then there is too much direct sun entering the upper floor windows (the shadow should extend to the bottom of window sill.) i am not to crazy about the central landing an stairs cutting the yard down the middle with the walkway. perhaps the designer could relocate to one side to allow from better programming of the yard space?

above is a rendering of the house model from above. lots of flat roofs, so lets hope they hire an experienced builder, and specify a good roofing membrane.

aha, now we see why the deck off the ground floor is in the middle. it’s those two lower patios to enter the media room and secondary suite. my thought is to eliminate the media room patio. those southern windows are only going to cause glare in the room when you are trying to watch tv. the main entry porch looks like it could have that feature stonework continue inside the entry and wrap around the wall at the living room. this could be really nice. take a look at the listing and you will see that the interior rendering show exactly what i envision.

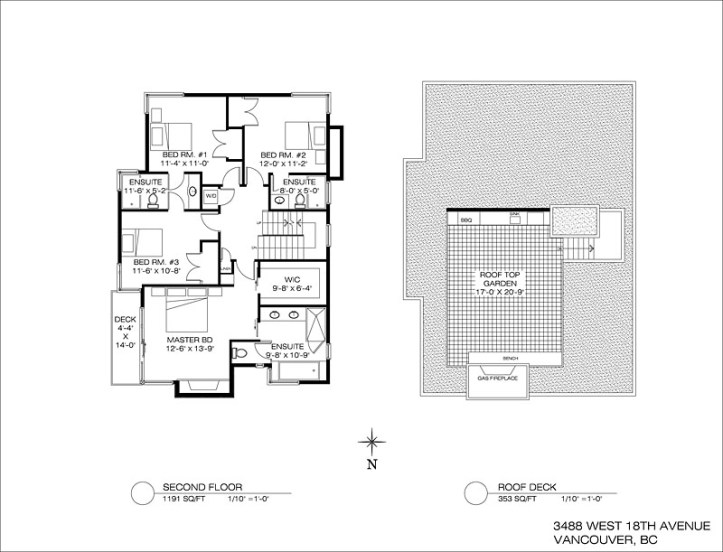
above is the upper floor plans. nice roof deck access from second floor stairs. i wonder where the door from inside to outside is? having the stairs exposed to weather will be interesting and a good challenge for the builder to maintain waterproofed. do you really think the homeowners are going to travel up and down those stairs with meat for bbq-ing?
overall a great project and i will be interested to see it built.
side note: the listing price is a bit out there at $2,888,000. the current year assessed value for the lot & improvements is only $1,478,700 according to the city of vancouver, so i don’t know what the additional $1,409,300 is for? maybe the cost of construction is induced in the price?
Hi David,
Great site – enjoy looking thru the many modern homes you have collected here on your blog. I am the builder of 9 W22nd Ave and also recently finished 3488 W18th Ave which you featured when it was first listed with the renderings.
FYI, here’s the agent’s listing for W18th when it was listed again for sale after building it (unfortunately not many photos, also changed up some of the original layout to improve on things, Architect is EDG Homes which you have other projects featured for)…
http://goodwillhomes.ca/property_details-3-46437.html
Also, some other photos on Houzz’s site (Decora staged the place for showing)…
http://www.houzz.com/projects/426208/New-home-on-Vancouver-s-Westside—luxury-custom-built
Thanks,
Neil